Aller à :

  • Aller à la recherche
  • Aller au menu principal
  • Aller au contenu
0
  • Vente
    • Immobilier d'habitation
    • Immobilier professionnel
  • qui sommes-nous ?
  • Estimation
  • Vente interactive
  • Conseils
  • Alerte email
  • Espace propriétaire
0
VotreRecherche
Dans un rayon de
Budget
entre et €
Min €
Max €
  1. Agence immobilière à Douvres-la-Délivrande
  2. Vente
  3. Calvados
  4. Anisy
  5. Maison
  6. T6
  7. Maison de plain pied a renover

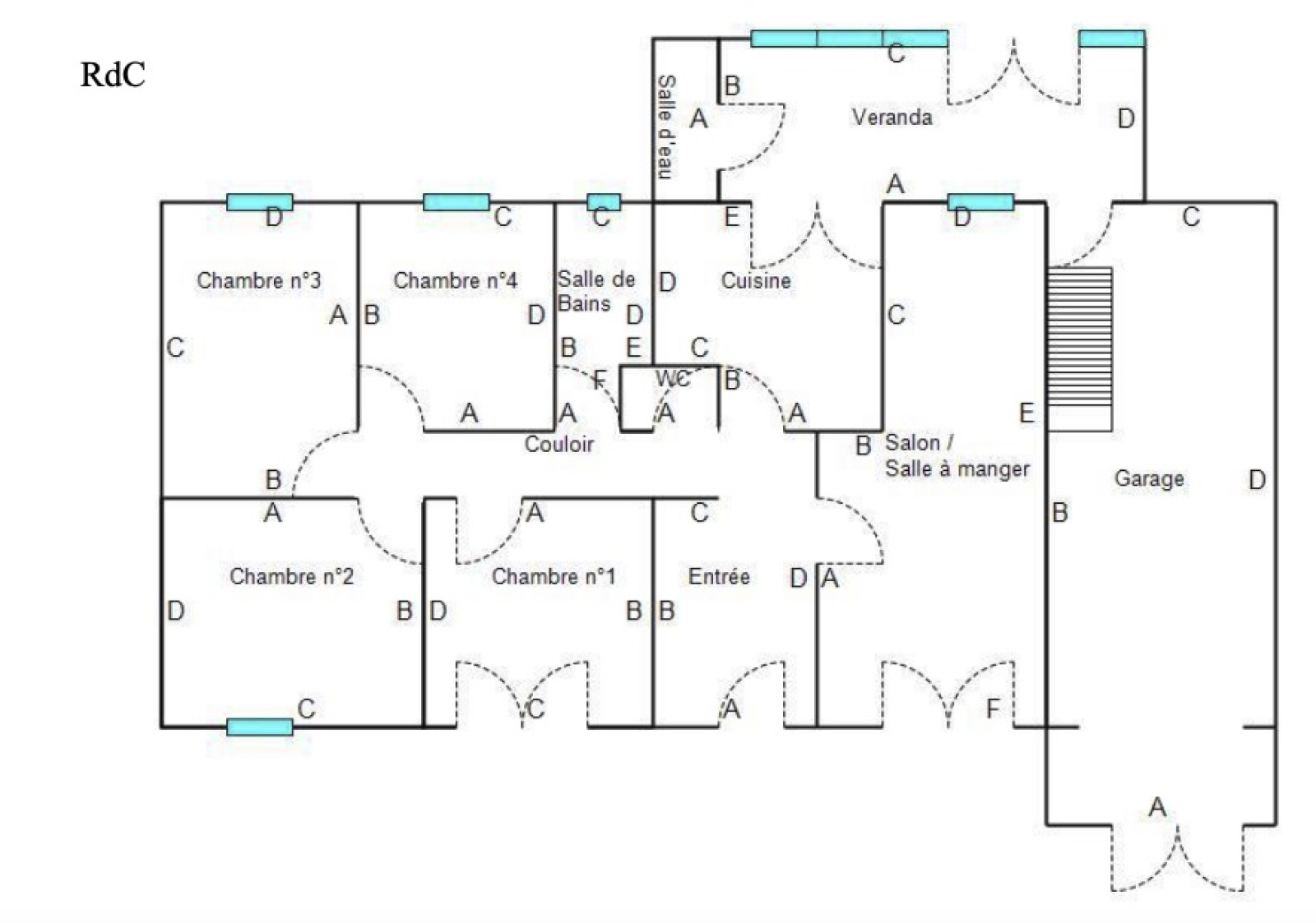
MAISON DE PLAIN PIED à rénover Anisy (14610)

295 000 €
Réf : 882-CH

Présentation

Nouvelle opportunité suite à une baisse de prix significative...

Dans l’un des secteurs les plus prisés du Nord de Caen, découvrez cette MAISON DE PLAIN PIED à rénover, offrant un potentiel rare.

Implantée sur un terrain de plus de 820 m², ce bien se distingue par ses volumes exploitables et les nombreuses possibilités d’aménagement qu’elle propose.

Les mots ne servent à rien... Une visite sur place est essentielle pour appréhender pleinement son potentiel et se projeter dans un beau projet d'aménagement.

Le plan intérieur peut être entièrement repensé afin de créer un espace de vie contemporain de plus de 40 m², quatre chambres, ainsi qu’un dressing, pour un cadre de vie calme à 10 minutes de Caen.


Les informations sur les risques auxquels ce bien est exposé sont disponibles sur le site Géorisques

Les infos
essentielles

Caractérisque Valeurs
Code postal 14610
Surface habitable (m²) 100 m²
surface terrain 820 m²
Nombre de chambre(s) 4
Nombre de pièces 6
Nombre de niveaux 1
Vue Jardin

Les + du bien

Détails +

Caractérisque Valeurs
Nb de salle de bains 1
Mode de chauffage Electrique
Type de chauffage Convecteur
Format de chauffage Individuel
Nombre de garage 1
Exposition Est-Ouest
Année de construction 1977
Terrain piscinable OUI
Terrain arboré OUI

Financier

Caractérisque Valeurs
Prix de vente 295 000 €
Les honoraires d'agence seront intégralement à la charge du vendeur  

DPE

DPE GES

Copropriété

Caractérisque Valeurs
Copropriété NON

Quartier

Cette offre vous intéresse
Ménétrier Christophe Négociateur
0695704130
E-mail christophe@caen-nord-immobilier.com

* champs obligatoire

Les informations recueillies sur ce formulaire sont enregistrées dans un fichier informatisé par La Boite Immo agissant comme Sous-traitant du traitement pour la gestion de la clientèle/prospects de l'Agence / du Réseau qui reste Responsable du Traitement de vos Données personnelles. La base légale du traitement repose sur l'intérêt légitime de l'Agence / du Réseau. Elles sont conservées jusqu'à demande de suppression et sont destinées à l'Agence / au Réseau. Conformément à la loi « informatique et libertés », vous disposez des droits d’accès, de rectification, d’effacement, d’opposition, de limitation et de portabilité de vos données. Vous pouvez retirer votre consentement à tout moment en contactant directement l’Agence / Le Réseau. Consultez le site https://cnil.fr/fr pour plus d’informations sur vos droits. Si vous estimez, après avoir contacté l'Agence / le Réseau, que vos droits « Informatique et Libertés » ne sont pas respectés, vous pouvez adresser une réclamation à la CNIL. Nous vous informons de l’existence de la liste d'opposition au démarchage téléphonique « Bloctel », sur laquelle vous pouvez vous inscrire ici : https://www.bloctel.gouv.fr Dans le cadre de la protection des Données personnelles, nous vous invitons à ne pas inscrire de Données sensibles dans le champ de saisie libre.
Ce site est protégé par reCAPTCHA, les Politiques de Confidentialité et les Conditions d'Utilisation de Google s'appliquent.

Nos outils
Imprimer Imprimer
Partager le bien
Calculatrice financière

* Champ obligatoire

Partager l'annonce

* champs obligatoire

Les informations recueillies sur ce formulaire sont enregistrées dans un fichier informatisé par La Boite Immo agissant comme Sous-traitant du traitement pour la gestion de la clientèle/prospects de l'Agence / du Réseau qui reste Responsable du Traitement de vos Données personnelles. La base légale du traitement repose sur l'intérêt légitime de l'Agence / du Réseau. Elles sont conservées jusqu'à demande de suppression et sont destinées à l'Agence / au Réseau. Conformément à la loi « informatique et libertés », vous disposez des droits d’accès, de rectification, d’effacement, d’opposition, de limitation et de portabilité de vos données. Vous pouvez retirer votre consentement à tout moment en contactant directement l’Agence / Le Réseau. Consultez le site https://cnil.fr/fr pour plus d’informations sur vos droits. Si vous estimez, après avoir contacté l'Agence / le Réseau, que vos droits « Informatique et Libertés » ne sont pas respectés, vous pouvez adresser une réclamation à la CNIL. Nous vous informons de l’existence de la liste d'opposition au démarchage téléphonique « Bloctel », sur laquelle vous pouvez vous inscrire ici : https://www.bloctel.gouv.fr Dans le cadre de la protection des Données personnelles, nous vous invitons à ne pas inscrire de Données sensibles dans le champ de saisie libre.
Ce site est protégé par reCAPTCHA, les Politiques de Confidentialité et les Conditions d'Utilisation de Google s'appliquent.

Partager avec vos proches

Facebook Facebook
Messenger Messenger
Twitter Twitter
WhatsApp WhatsApp
LinkedIn LinkedIn
Copier le lien Copier le lien
Détail des diagnostics énergétiques
DPE GES

Montant estimé des dépenses annuelles d'énergie pour un usage standard est compris entre 1 279 € et 1 731 € . Prix moyens des énergies indexés sur les années 2021, 2022 et 2023 (abonnements compris).

Autres biens

Ces biens peuvent aussi vous intéresser

Maison

Maison récente à 5 minutes de Bayeux

Bayeux (14400)
Voir le bien
Maison

MAISON 5PP BORD DE MER

Luc-sur-Mer (14530)
Exclusif
Voir le bien
Contacter
l'agence

Remplissez ce formulaire, nous ferons de notre mieux pour vous répondre dans les meilleurs délais.

Caen Nord Immobilier
02 31 37 88 00
E-mail contact@caen-nord-immobilier.com

1 Rue Jean Perrin 14440 Douvres-la-Délivrande

TRAD_MELTEM_voscoordonnees
TRAD_MELTEM_voredemande
Règlementation

* Champ obligatoire

Les informations recueillies sur ce formulaire sont enregistrées dans un fichier informatisé par La Boite Immo agissant comme Sous-traitant du traitement pour la gestion de la clientèle/prospects de l'Agence / du Réseau qui reste Responsable du Traitement de vos Données personnelles. La base légale du traitement repose sur l'intérêt légitime de l'Agence / du Réseau. Elles sont conservées jusqu'à demande de suppression et sont destinées à l'Agence / au Réseau. Conformément à la loi « informatique et libertés », vous disposez des droits d’accès, de rectification, d’effacement, d’opposition, de limitation et de portabilité de vos données. Vous pouvez retirer votre consentement à tout moment en contactant directement l’Agence / Le Réseau. Consultez le site https://cnil.fr/fr pour plus d’informations sur vos droits. Si vous estimez, après avoir contacté l'Agence / le Réseau, que vos droits « Informatique et Libertés » ne sont pas respectés, vous pouvez adresser une réclamation à la CNIL. Nous vous informons de l’existence de la liste d'opposition au démarchage téléphonique « Bloctel », sur laquelle vous pouvez vous inscrire ici : https://www.bloctel.gouv.fr Dans le cadre de la protection des Données personnelles, nous vous invitons à ne pas inscrire de Données sensibles dans le champ de saisie libre.
Ce site est protégé par reCAPTCHA, les Politiques de Confidentialité et les Conditions d'Utilisation de Google s'appliquent.

Se connecter
Espace propriétaire
Page d'accueil
Adhérents

© 2026 | Tous droits réservés | Traduction powered by Google |

  • Nos honoraires
  • Plan du site
  • Mentions légales
  • Admin
  • Nos liens
  • Politique RGPD

Comme beaucoup, notre site utilise les cookies

On aimerait vous accompagner pendant votre visite. En poursuivant, vous acceptez l'utilisation des cookies par ce site, afin de vous proposer des contenus adaptés et réaliser des statistiques !

Paramétrer

Cookies fonctionnelsCes cookies sont indispensables à la navigation sur le site, pour vous garantir un fonctionnement optimal. Ils ne peuvent donc pas être désactivés.

Statistiques de visitesPour améliorer votre expérience, on a besoin de savoir ce qui vous intéresse !
Les données récoltées sont anonymisées.

?

Google Analytics

En savoir plus